Bản đồ địa chỉ google maps của Xingfa Group (Thủ Đô Group)
Thông số kỹ thuật:
+ Thanh profile: nhôm Xingfa hệ 93 nhập khẩu chính hãng tem đỏ Quảng Đông
+ Độ dày nhôm: thân cửa và khuôn bao xung quanh dày 2.0mm (+- 5%)
+ Mầu sắc: trắng sứ, nâu sần ánh kim, đen tuyền, ghi sẫm, vân gỗ (giả gỗ)..
+ Kích thước: sản xuất và lắp ghép theo kích thước thực tế của công trình
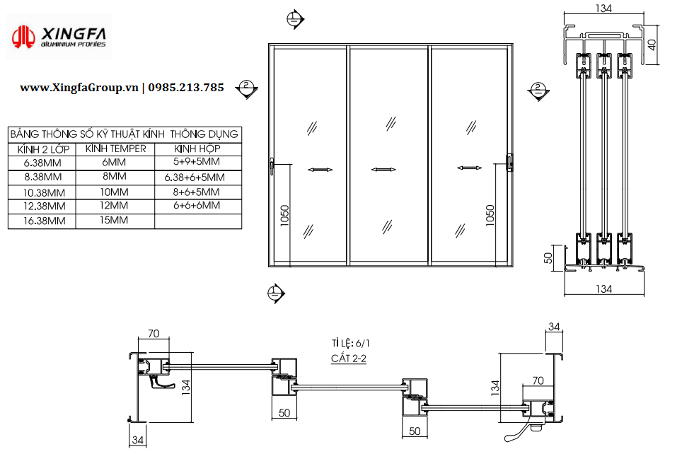
+ Kính: kính an toàn phôi việt nhật Hải Long có độ dày từ 6.38mm - 5.9.5mm
+ Phụ kiện: sử dụng phụ kiện Kinlong cao cấp nhập khẩu đồng bộ chính hãng 100%
+ Gioăng kép: sử dụng gioăng kép EDPM chất lượng cao kín khít tuyệt đối 100%
+ Keo: sử dụng keo đặc chủng Dowcorning Eurowindow chịu nước tuyệt đối 100%
+ Bảo hành: sản phẩm đồng bộ bảo hành chính hãng 5 năm
+ Website: www.XingfaGroup.vn
Bản vẽ kỹ thuật:
Bản vẽ thông số kỹ thuật cửa sổ mở trượt 3 cánh trên 3 ray độc lập
Đặc điểm nổi bật:
+ Cửa sổ mở trượt 3 cánh trên 3 ray độc lập nhôm Xingfa có thể mở được rộng 2/3 diện tích cửa.
+ Cửa có thể mở với kích thước tối đa rộng đến 10m mà vẫn đảm bảo độ an toàn chắc chắn.
+ Tiết kiệm không gian đóng/mở cửa, giúp tận dụng tối đa diện tích mở cửa cho ngôi nhà.
+ Độ an toàn cao, tránh được nguy cơ gió dập cũng như ngoại lực tác động từ bên ngoài.
+ Cho phép làm cánh cửa có kích thước lớn mà vẫn đảm bảo độ an toàn thẩm mỹ.
+ Giúp mở rộng không gian, tạo được tầm nhìn bao quát xung quanh cho công trình.
+ Dễ dàng vệ sinh & bảo dưỡng cửa, tiết kiệm chi phí sửa chữa định kỳ theo thời gian.
+ Có khả năng chống ăn mòn và chịu đựng được mọi thời tiết nhờ lớp xi mạ và sơn tĩnh diện.
+ Cửa sổ mở trượt 3 cánh trên hệ ray khác nhau mở nhẹ nhàng liên tục với độ bền vượt thời gian.
Cách âm & cách nhiệt:
+ Cửa sổ và vách được cấu tạo từ thanh hợp kim nhôm hệ Xingfa có cấu trúc dạng hộp chia thành nhiều khoang trống kết hợp với hệ gioăng và hệ phụ kiện kim khí đồng bộ đã tạo nên sản phẩm có khả năng cách âm tốt, cách nhiệt cao.
+ Cua so mo truot 3 canh tren 3 ray với công nghệ ghép góc tiên tiến bậc nhất hiện nay đảm bảo cửa cứng vững, cách âm, cách nhiệt cùng độ kín, khít cao.
Kín nước & kín khí:
+ Cửa sổ mở trượt 3 cánh trên 3 ray nhôm Xingfa có các ống dẫn nước hướng ra ngoài được thiết kế trên khung cửa sẽ ngăn nước chẩy vào bên trong một cách tối đa.
+ Sự kín khít tuyệt đối cản trở việc lưu thông không khí lạnh ở trong và nóng ở ngoài góp phần tiết kiệm chi phí điện cho điều hoà.
Chịu áp lực gió:
+ Cua so mo truot 3 canh tren 3 ray độc lập nhôm Xingfa nhập khẩu kết hợp hệ gioăng kép giúp chống nước chảy vào trong nhà tuyệt đối.
+ Cửa sổ nhôm Xingfa mở 3 cánh trên 3 ray chịu được áp lực gió lên đến 1600 pascal, đủ điều kiện đảm bảo an toàn cho những công trình nằm tại khu vực nhiều gió bão.
Hiệu quả kinh tế:
+ Việc sử dụng cửa hợp kim, vách nhôm và hộp kính là giải pháp tốt nhất trong việc tiết kiệm năng lượng cho các toà nhà cao tầng có nhiều mặt tiếp xúc trực tiếp với ánh năng mặt trời.
+ Thanh nhôm được xử lý bề mặt và sơn tĩnh điện với công nghệ tiên tiến sẽ có độ bền cao, luôn giữ được màu sắc và kết cấu của cửa ngay cả trong điều kiện thời tiết khắc nghiệt ở Việt Nam.
An toàn & thuận tiện:
+ Có độ cứng cao giúp tăng khả năng chịu lực, đảm bảo an toàn cho ngôi nhà.
+ Cửa mở 3 cánh trên 3 ray giúp mở rộng không gian 2/3 diện tích bao quát cho công trình.
+ Vật liệu cửa nhôm Xingfa nhập khẩu nhẹ góp phần làm giảm tải trọng của công trình.
+ Với quy cách mở trượt sẽ mang lại nhiều lựa chọn về không gian mở cho người sử dụng.
+ Đa dạng kích thước, kiểu dáng, mẫu mã, chủng loại phù hợp với nhiều kiểu kiến trúc.
Lắp đặt & bảo dưỡng:
+ Thuận tiện trong công việc thi công và lắp đặt chắc chắn, an toàn mang đến một hệ cửa hoàn thiện cả về thiết kế thẩm mỹ và độ bền theo thời gian.
+ Sản phẩm cua nhom Xingfa he cua so mo 3 canh tren 3 ray dễ dàng lau chùi, bảo dưỡng và luôn giữ được vẻ đẹp hoàn hảo ban đầu.
Phục vụ chuyên nghiệp:
+ Thương hiệu Xingfa Group tượng trưng cho chất lượng, độ chính xác và cẩn thận đến từng chi tiết.
+ Tiêu chuẩn sản xuất tiên tiến từ các nước Châu Âu được áp dụng nghiêm ngặt đảm bảo tính chuyên nghiệp cho cua nhom Xingfa trên toàn hệ thống từ sản xuất, phân phối và lắp đặt.
+ Nhu cầu của bạn có thể đáp ứng một cách dễ dàng và nhanh chóng thông qua đội ngũ CBNV chuyên nghiệp, có trình độ chuyên môn cao, thợ lành nghề.
Dây chuyền sản xuất tự động hóa CNC:
+ Cửa nhôm Xingfa nhập khẩu của Xingfa Group được sản xuất trên dây chuyền công nghệ hoàn toàn tự động hóa CNC tiên tiến bậc nhất hiện nay.
+ Dàn máy sản xuất của các hãng nổi tiếng trên thế giới như: DECA, SIKECA, ROYAL, DECASIMA, PACKER.. tạo nên một sản phẩm cửa tiêu chuẩn quốc tế, đẹp hoàn mỹ và chính xác đến từng minimet.
Công nghệ ép ke góc tự động hóa CNC:
+ Sử dụng ke ép góc bằng nhôm định hình Anot đặc chủng dày 5mm - 10mm đảm bảo độ cứng vững chắc tuyệt đối cho khung bao và cánh cửa.
+ Sử dụng công nghệ bấm ép góc tự động hóa bằng dàn máy hiện đại tiên tiến bậc nhất hiện nay kết hợp ke chống vênh bề mặt giúp cho cửa đạt được độ kín khít tuyệt đối & độ bền vĩnh cửu.
+ Một số các đơn vị xưởng tư nhân thủ công nhỏ lẻ không có máy móc cho công nghệ này sẽ bắt vít để cố định góc làm cho góc ghép thanh nhôm không kín khít, dễ bị nước ngắm xuyên qua, dễ bị ô xi hóa lão hóa dẫn đến độ bền cửa không được cao.
Dàn máy ép ke góc 3 lưỡi giao nhập khẩu Thổ Nhĩ Kỳ:
+ Xingfa Group sử dụng dàn máy ép góc 3 lưỡi giao tự động hóa CNC nhập khẩu Thổ Nhĩ Kỳ giúp góc ghép thanh nhôm kín khít tuyệt đối 100%, phẳng mịn & siêu thẩm mỹ, giúp cửa cứng cáp cố định tuyệt đối, không bị nước ngấm xuyên qua, không bị ô xi hóa với độ bền vượt thời gian.
+ Hầu hết các đơn vị xưởng tư nhân thủ công nhỏ lẻ hiện nay chỉ có máy ép góc 2 lưỡi giao ép góc thủ công và bắt vít để giữ cố định góc làm cho góc ghép thanh nhôm không kín khít, dễ bị nước ngắm xuyên qua, dễ bị ô xi hóa lão hóa dẫn đến độ bền cửa không được cao.
Keo đặc chủng ép góc PU88 nhập khẩu (Mỹ):
+ Sử dụng keo ép góc PU88 có nguyên liệu nhập khẩu từ Mỹ (USA) giúp cho cửa khắc phục được hoàn toàn tình trạng biến dạng của cửa, đàn hồi dẻo dai, chịu được tia cực tím các chất hóa học, chống ăn mòn, chống sốc cho cửa & chống chịu nước tuyệt đối 100%.
+ Keo PU88 có tính năng chống chịu thời tiết tốt và khả năng chống lão hóa và cải thiện được độ bền của cửa, tránh việc bị phá vỡ kết cấu kết dính trong quá trình vận chuyển và trong suốt quá trình sử dụng lâu dài.
+ Keo PU88 là dạng keo trung tính, không độc hại, không vị và không gây ô nhiễm môi trường, đóng rắn nhanh và kết dính vững chắc tuyệt đối với độ bền vượt thời gian..
+ Một số đơn vị tư nhân xưởng sản xuất nhỏ lẻ sẽ không dùng keo PU88 cho khâu ép góc cửa vì giá thành của keo PU88 tương đối cao và chi phí sử dụng tương đối lớn.
Keo đặc chủng Dow Corning nhập khẩu (Mỹ):
+ Xingfa Group sử dụng 1 loại keo duy nhất đặc chủng DOW CORNING nhập khẩu Mỹ (USA) có mã vạch Code QR nhập khẩu chính hãng 100%.
+ Keo Dow Corning đặc chủng chống tia UV, đàn hồi vĩnh viễn khi đóng rắn, chịu được nhiệt độ từ -100 đến 150 độ C, chịu nước tuyệt đối 100%, độ bền gấp 10 lần các loại keo silicone giá rẻ sản xuất tại trong nước...
+ Dow Corning (DOW) được sử dụng hầu hết ở tất cả các nước phát triển trên thế giới như các nước Châu Âu, Châu Mỹ, Châu Á, Mỹ, Dubai, Nhật Bản..
+ Tại Việt Nam thì keo Dow Corning cũng đã có mặt được trên 20 năm và được tất cả các tên tuổi lớn trong ngành xây dựng kết cấu lắp ghép sử dụng như: Eurowindow, Quân Đạt, HASKY, BM Window, Sinh Nam, Weathersafe Window, TV Window, Xingfa Group, Thủ Đô Group..
Keo đặc chủng Eurowindow giãn nở gấp 60 lần:
+ Xingfa Group sử dụng keo bọt Eurowindow giãn nở đặc chủng kín khít chịu nước tuyệt đối 100% với độ bền vượt thời gian..
+ Keo bọt Eurowindow giãn nở gấp 60 lần và độ bền gấp 10 lần các loại keo giá rẻ kém chất lượng sản xuất trong nước khác như: Apollo, Foam, Soudal..
Ốc vít Inox siêu cứng cáp & chống han rỉ:
+ Toàn bộ sản phẩm cửa nhôm Xingfa được sản xuất và lắp ghép bởi Xingfa Group đều sử dụng 100% bằng ốc vít Inox siêu bền bỉ chống han rỉ theo thời gian.
+ Sử dụng ốc vít Inox giúp cửa thêm cứng cáp và không bị Oxi hóa ngay cả khi lắp đặt ở những nơi có thời tiết khí hậu khắc nghiệt nhất như: mưa nắng nhiều, vùng miền biển, sa mạc hóa..
Kính an toàn phôi việt nhật Hải Long tiêu chuẩn quốc tế:
+ Sử dụng kính an toàn phôi việt nhật của hãng sản xuất kính Hải Long theo tiêu chuẩn quốc tế.
+ Sản xuất theo kích thước thực tế của từng công trình sau khi đo chuẩn kích thước từng bộ cửa.
+ Có thể sử dụng kính dán an toàn, kính cường lực, kính hộp cách âm cách nhiệt..
+ Kính dán an toàn như: 6.38mm, 8.38mm, 10.38mm, 12.38mm, 15.38mm..
+ Kính temper cường lực: 5mm, 8mm, 10mm, 12mm, 15mm, 19mm, 21mm..
+ Kính hộp temper cường lực: 5-6-5mm, 5-9-5mm, 8-6-8mm, 8-9-8mm, 10-9-10mm..
+ Kính hộp an toàn cường lực 6.38-6-6.38mm, 6.38-9-6.38mm, 8.38-9-8.38mm, 10.38-9-10.38mm
Phụ kiện Kinlong cao cấp nhập khẩu 100%:
+ Cửa nhôm Xingfa sử dụng tương thích hệ phụ kiện kim khí Kinlong cao cấp chống ăn mòn, chống gỉ lão hóa theo thời gian.
+ Phụ kiện kim khí Kinlong cao cấp nhập khẩu đồng bộ chính hãng đa dạng kiểu dáng và mẫu mã cho khách lựa chọn.
Siêu thẩm mỹ & Độ bền vượt thời gian:
+ Hợp kim nhôm được ứng dụng đứng thứ 2 (sau thép) về sản xuất và ứng dụng.
+ Được ứng dụng cả trong công nghệ chế tạo máy bay và các thiết bị ngành hàng không.
+ Cửa nhôm Xingfa được lắp ghép từ các thanh nhôm hợp kim định profile Xingfa nhập khẩu chính hãng tem đỏ Quảng Đông có độ bền vượt thời gian.
Sản phẩm đồng bộ bảo hành chính hãng 5 năm:
+ Bảo hành toàn bộ phần thân cửa nhôm Xingfa nhập khẩu tem đỏ Quảng Đông 5 năm và hệ phụ kiện kim khí Kinlong cao cấp đồng bộ 2 năm.
+ Dịch vụ bảo hành của Xingfa Group chuyên nghiệp 24/7 tất cả các ngày nghỉ thứ 7, CN & các ngày nghỉ lễ tết.
VIDEO Cửa sổ nhôm XINGFA hệ 93 BẢN TO dày 2.0mm mở trượt 3 cánh trên 3 ray:
VIDEO Cửa sổ mở trượt 3 cánh trên 3 ray độc lập nhôm Xingfa hệ 93 Bản To dày 2.0mm
Hình ảnh cửa sổ nhôm XINGFA hệ 93 BẢN TO dày 2.0mm mở trượt 3 cánh trên 3 ray:
Mẫu cửa sổ nhôm Xingfa hệ 93 BẢN TO dày 2.0mm mở trượt 3 cánh trên 3 ray độc lập
Mẫu cửa sổ mở trượt 3 cánh trên 3 ray độc lập nhôm Xingfa hệ 93 BẢN TO dày 2.0mm
Mẫu cửa sổ mở trượt 3 cánh trên 3 ray độc lập nhôm XINGFA khi đóng kín khít tuyệt đối 100%




.png)





